Forte dei Marmi – L’eccellenza dell’abitare contemporaneo a un passo dal mare
Nel cuore più riservato ed elegante di Forte dei Marmi, a soli 1 km dal mare e immersa nella quiete di una laterale di Viale Versilia, sorge questa prestigiosa villa di nuova costruzione, concepita per offrire il massimo in termini di comfort, design e qualità della vita.
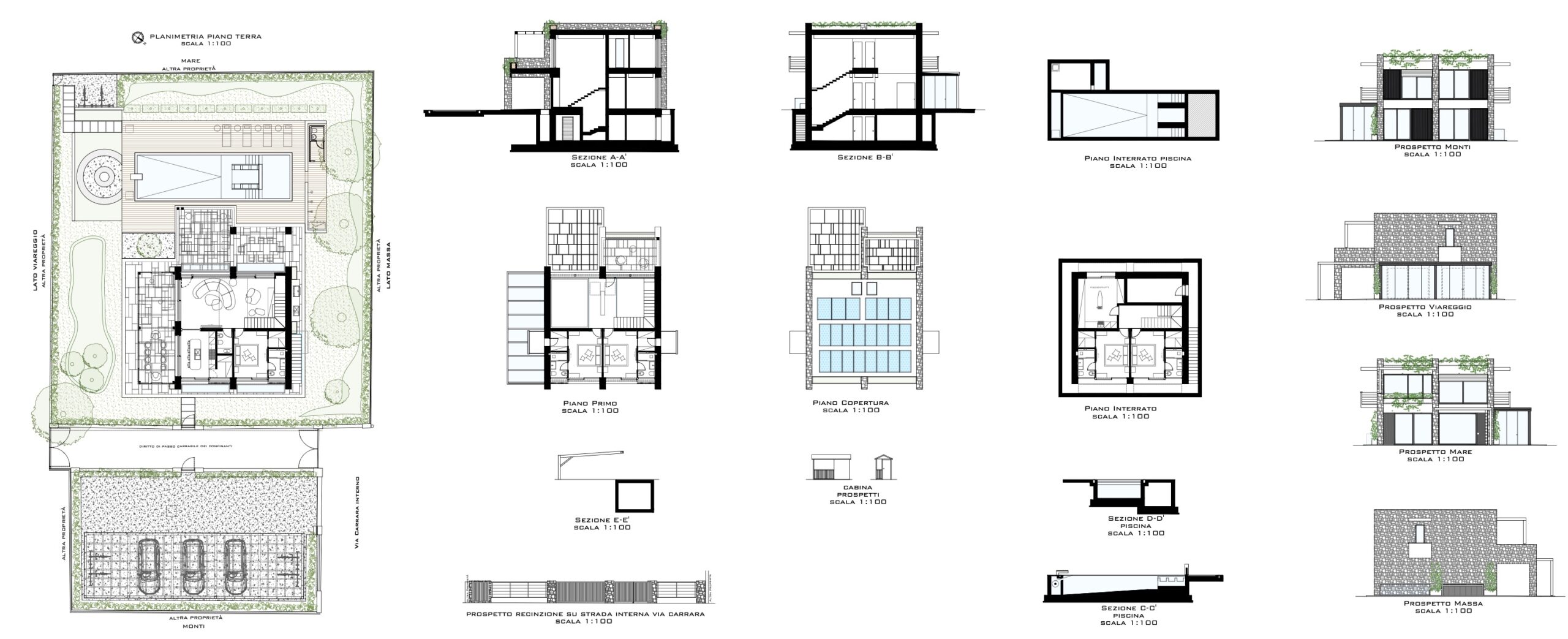
Realizzata su un ampio lotto di 1.360 mq, la proprietà si distingue per la sua architettura moderna e armoniosa, dove la luce, il verde e i materiali naturali dialogano in perfetta sintonia. La superficie commerciale di 165 mq si sviluppa su due livelli fuori terra, arricchita da una serra solare di 30 mq e da un ampio piano interrato di 180 mq, pensato per accogliere aree benessere e ambienti di servizio di altissimo livello.
Il piano terra – La luce come protagonista
Fin dall’ingresso si percepisce l’eleganza del progetto: un grande soggiorno vetrato con bow window panoramici si apre sul portico coperto, creando una perfetta continuità tra interno ed esterno.
Il salone, luminosissimo e di grande respiro, è pensato per vivere in ogni stagione, con ampie superfici in vetro, travertino naturale, legni caldi e pietra a vista che conferiscono un’atmosfera raffinata e contemporanea.
All’esterno si sviluppa una vera oasi di benessere: una piscina di circa 70 mq, con idromassaggio integrato, giochi d’acqua scenografici, doccia e spogliatoio esterni, incorniciata da un camino a fiamma viva e da una cucina in muratura per pranzi e cene all’aperto. È uno spazio che fonde la convivialità con la bellezza del paesaggio, ideale per vivere la magia delle estati versiliesi.
La cucina abitabile, spaziosa e perfettamente attrezzata, gode di accesso diretto alla serra solare, uno spazio unico e luminoso pensato come raffinata zona giorno invernale o giardino d’inverno, dominato da un cenacolo imperiale che ne esalta il carattere scenografico.
Completano il piano un bagno di servizio e una camera matrimoniale con bagno en suite e cabina armadio, ideale anche come suite per ospiti.
Il primo piano – Privacy e comfort esclusivo
Una scala scenografica a vista conduce al piano superiore, dove il doppio volume regala profondità e una suggestiva prospettiva sul living. Qui si sviluppano due magnifiche suite padronali, entrambe dotate di cabina armadio e bagno privato con finiture di pregio, concepite come autentici rifugi di benessere e relax.
Un terrazzo panoramico, impreziosito da fioriere integrate e vista sul giardino, completa il livello, offrendo uno spazio intimo e riservato per momenti di assoluta quiete.
Il piano interrato – Benessere e funzionalità
Il piano seminterrato, perfettamente illuminato e ventilato, accoglie una zona spa privata con predisposizione per sauna, bagno turco e area fitness, oltre a due ulteriori camere matrimoniali con bagno en suite e cabina armadio.
Un’ampia zona lavanderia e locali tecnici completano la parte funzionale della villa, garantendo il massimo ordine e comfort abitativo.
Spazi esterni e materiali
Il giardino, curato nei minimi dettagli, ospita alberi ornamentali, siepi e fioriere in pietra naturale, disegnando un paesaggio mediterraneo elegante e rilassante.
La proprietà offre inoltre cinque posti auto coperti da carport, perfettamente integrati nel design architettonico della casa.
Ogni ambiente è rifinito con materiali extralusso: travertino naturale e rosso, essenze lignee pregiate, pietra viva e dettagli sartoriali che raccontano un’eleganza autentica e senza tempo.
Un rifugio esclusivo nel cuore della Versilia
Questa villa non è solo una casa, ma un’esperienza di vita: un connubio tra architettura contemporanea, natura e lusso discreto, dove ogni dettaglio è stato pensato per garantire benessere, privacy e bellezza quotidiana.
Un rifugio perfetto per chi cerca un’abitazione di rappresentanza, in una delle località più iconiche e desiderate d’Italia.
-
Prezzo € 5.700.000
-
Camere 5
-
Tipologia 5 Camere, Case Mono/Bifamiliari, Villa
-
Metri quadri 300 m2
-
Bagni 6
-
Contratto Vendita