Canova Attico
Nel cuore del quartiere Lubiana, uno dei più apprezzati a Parma per vivibilità e servizi, prende forma Canova 7, elegante progetto residenziale di nuova costruzione composto da sole tre unità abitative, una per piano, con consegna prevista autunno 2026. L’edificio sorge in una zona tranquilla e riservata, circondata da immobili di piccole dimensioni che garantiscono privacy e quiete.
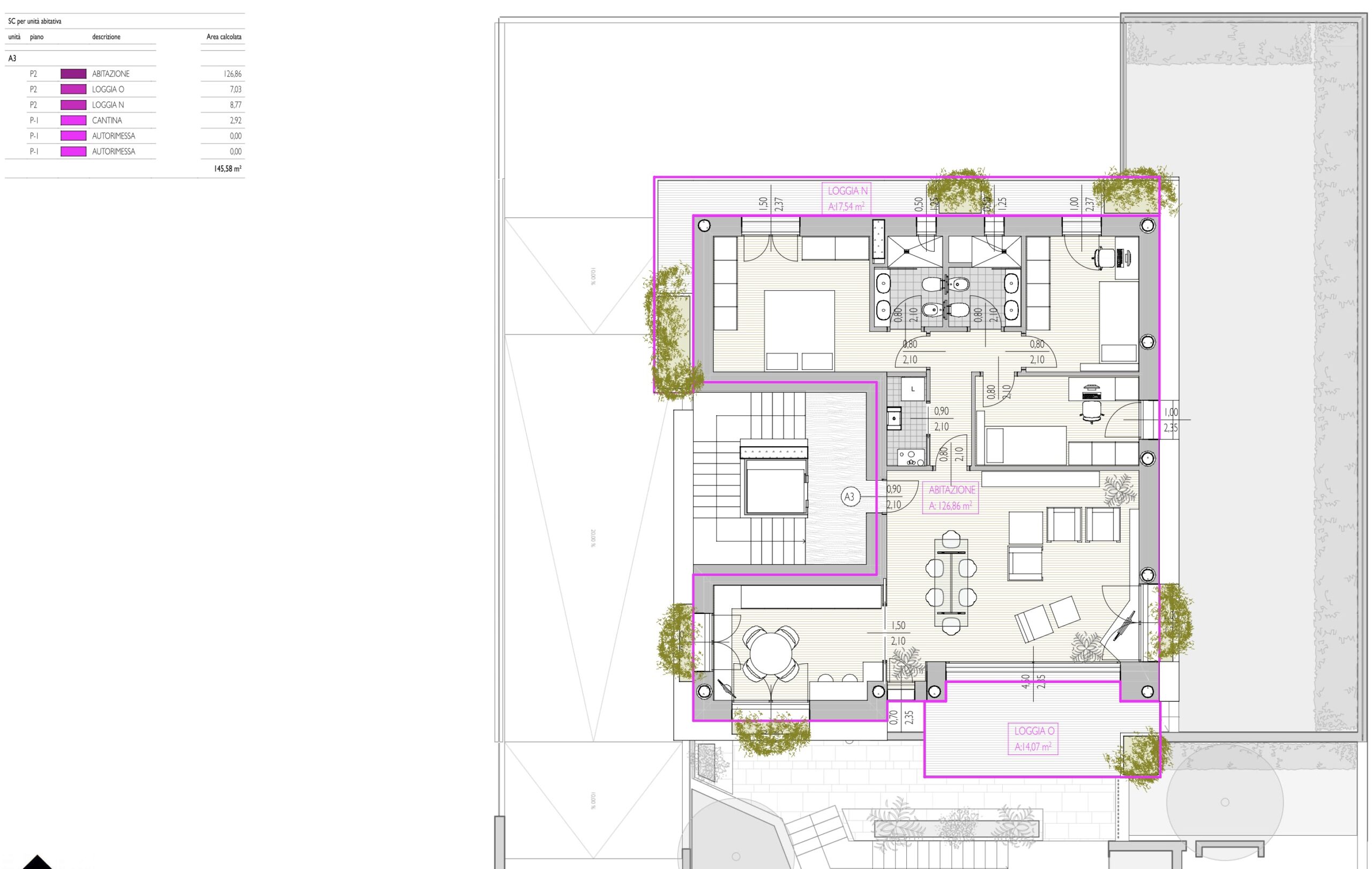
Nello specifico proponiamo un appartamento situato al secondo e ultimo piano, servito da ascensore, di 145 mq commerciali. L’ingresso conduce alla luminosa zona giorno, composta da un soggiorno ben dimensionato con accesso alla loggia e cucina a vista, pensata per un utilizzo pratico e funzionale. La zona notte comprende una camera matrimoniale con bagno en suite e accesso diretto alla loggia, una camera singola anch’essa collegata alla loggia, una seconda camera singola, un secondo servizio e un locale lavanderia. La distribuzione degli ambienti è studiata per garantire comfort e razionalità, con la possibilità di personalizzare le finiture secondo le proprie esigenze..
L’immobile è dotato di riscaldamento e raffrescamento a pavimento, ventilazione meccanica controllata, pannelli fotovoltaici dedicati, pompa di calore e impianto termoautonomo.
Un contesto esclusivo e silenzioso, perfetto per chi desidera una casa nuova, efficiente e inserita in una delle zone più richieste della città.
-
Prezzo € 596.000
-
Camere 3
-
Tipologia 3 Camere, Appartamento
-
Metri quadri 145 m2
-
Bagni 2