Bilocale Moderno in Centro Storico

In una delle vie più centrali di Parma, precisamente in Via Mazzini, proponiamo in locazione un appartamento bilocale completamente rinnovato nel 2025 e già arredato, posto al quarto piano di un elegante edificio dotato di ascensore.

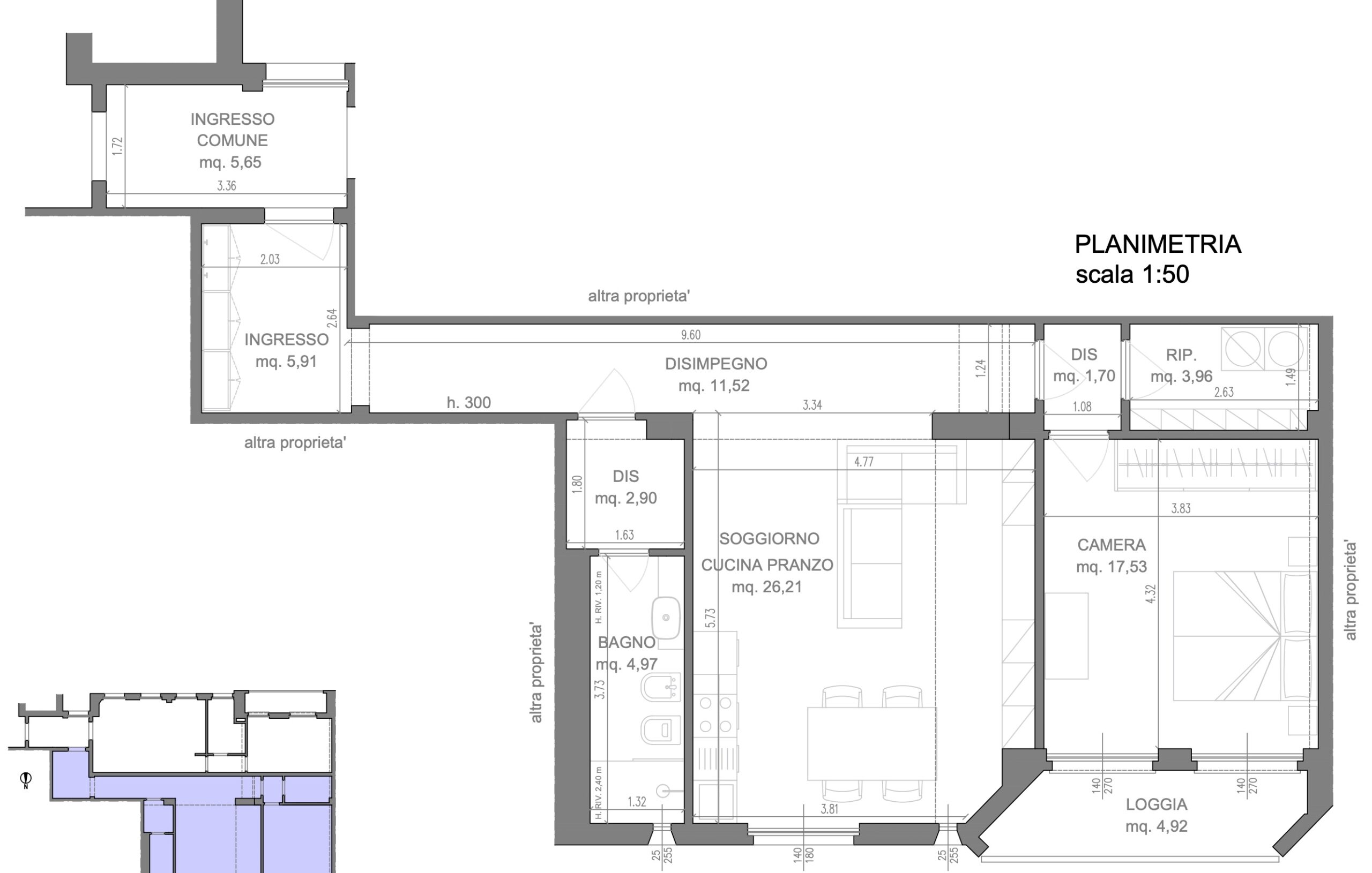
L’alloggio, molto silenzioso e rifinito con cura in ogni particolare, si apre su un comodo ingresso con guardaroba e un luminosissimo soggiorno, arredato con stile contemporaneo e cucina a vista, pratica e ben accessoriata. La zona notte comprende una camera da letto matrimoniale con balcone affacciato su un’incantevole veduta dei tetti di Parma, oltre a un bagno finestrato dal design moderno e raffinato, con antibagno e angolo lavanderia. È presente anche un ampio ripostiglio.

Completano la proprietà una cantina e il posto bici condominiale.
Impianto di climatizzazione, riscaldamento centralizzato ed elettrodomestici inclusi: questa abitazione rappresenta la soluzione perfetta per chi desidera una casa pronta all’uso, nel cuore della città ma in un contesto tranquillo e protetto dai rumori.

Posizione

Potrebbe piacerti anche

Compare